SB - IMMOCONCEPT
SB - IMMOCONCEPT

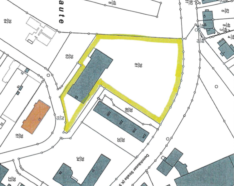
                       Wohnanlage in Kassel-Niederzwehren

 

 

Kassel

 

Niederzwehren ist eines der größeren Stadtteile Kassels. Mit dem Auto benötigt man nur 15 Minuten direkt in die Stadtmitte der ehemaligen Residenzstadt  Kassel ist Verwaltungssitz des gleichnamigen Regierungsbezirkes und des Landkreises Kassel. Als einzige Großstadt Nordhessens ist sie nach Frankfurt und Wiesbaden die drittgrößte Stadt und eines von zehn Oberzentren des Landes Hessen. Im Dezember 2015 wurden 200.507 Einwohner gezählt. 

 

Am 29.Mai 1991 wurde der Bahnhof Kassel-Wilhelmshöhe neu errichtet. Er liegt direkt auf der Neubaustrecke Hannover-Würzburg. Damit wurde Kassel über verschiedene Schnellfahrstrecken an das bundesweite ICE-Netz angeschlossen. Als zentrales Drehkreuz im bundesdeutschen Autobahnnetz bietet Kassel den edealen Standort für die dort angesiedelte Industrie.

 

Kassel ist eine Unversitätsstadt mit 25.000 Studenten. Das Bundessozialgericht und zahlreiche hessische Gerichtsbarkeiten und Behörden haben in Kassel ihren Sitz.

 

 

 

 

 

<

 

 

   Objektdetails

Objektart Wohnanlage (Invest.)
Baujahr Fertigstellung 1.Quartal 2018
Ortsangaben

Niederzwehren ist mit 12.000 Einwohnern der drittgrößte Stadtteil Kassels.

Es gibt 40 Vereine, Verbände und Schulen.

Niederzwehren verbindet modernes Stadtleben mit seiner historischen Vergangenheit.

Gehobene Gastronomie, exklusive Fachgeschäfte und das bekannte "dez" Einkaufszentrum finden Sie dort.

Lage

Niederzwehren ist über öffentliche Verkehrsmittel sehr gut an die Kasseler Innenstadt angebunden.Mit dem Auto benötigen Sie ca 20 Minuten.

Auf dem Gelände entstehen weitere drei Mehrfamilienhäuser (Neubauten). Weiter unten auf dieser Seite finden Sie die dazu gehörigen Perspektiven.

Baubeginn wird im Frühjahr 2018 sein, die Fertigstellung ist für den Sommer 2019 geplant.

Wohneinheiten Bestandsgebäude 27 Wohneinheiten
Neubauten 10 Wohneinheiten (insgesamt 30)
Wohnungsgrößen

Zweizimmerwohnungen zwischen 60 - 65 m2

Dreizimmerwohnungen  zwischen 64 - 80 m2

Kaufpreis VB
Kaufpreis pro m2 VB
Kaufpreis Stellplatz 5. 000,00 €
Mieteinnahmen SOLL / Jahr ca. 201. 500, 00 €
Mieteinnahmen pro m2 9 € pro m2
Grundstücksgröße Teilfläche Bestandsgebäude 6.500 m2
Wohnfläche 1776 m2
Stellplätze  27
Etagen 3
Qualität Zustand gehoben / kernsaniert - KFW 55
Qualität Ausstattung gehoben
Nutzung Wohnen
Energieausweis vorhanden von 2017
Heizungsart Zentralheizung / Fernwärme  (Konvektoren)

 

 

 

 

 

 

 

 

 

 

 

 

 

 

 

 

 

 

 

 

 

 

 

 

 

 

 

Druckversion | Sitemap
© S B IMMOCONCEPT